Detail
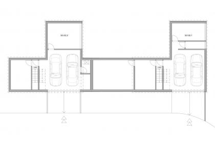
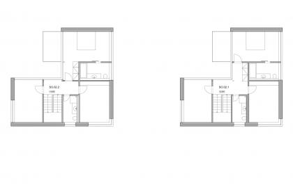
Sunny plot of land surrounded by gardens. At the Bratislava Koliba. The Koliba Gardens complex consists of ten houses designed so that each represents a separate living space. We were looking for an ideal concept that would fully connect the interior with the garden, while inducing a feeling of maximum privacy. Each house has a well-protected atrium, where you can live outside without the views of neighbours. Privacy is underlined also by a private path across the plot, which is sunk lower than the level of the main living floor and garden.
selected competition: 2015
project: 2018
status: built
site:
built-up area:
floor space area: 1 426,4
client: púpava development s.r.o.
architects: Andrej ALEXY, Štefan RAFANIDES
cooperation: Erik JAKEŠ, Lucia PROCHÁZKOVÁ, Viktor KASALA
www.kolibagardens.sk
photo: Tomáš Manina
video: Koliba Gardens and pupava development



