Detail
Context and rationality
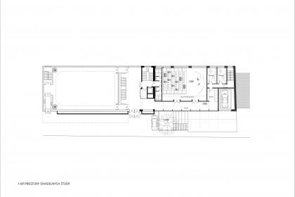
Harmonization of the school complex and rationality of functional diagram. The architecture responds to the facades tectonics of the historical school and builds on the geometrically abstracted system of volumes of the Faculty of Theater and Film. The design respects context of the surrounding city with its height and street line. For neighboring buildings, it is a partner that connects them.
Space saving and spaciousness
The proposed building uses a common main entrance and also allows separate access to the multifunctional hall in the center of the volume. All halls have daylight. In the limited conditions of the gaps, there were views between the individual levels of the foyer, which visually contacts the exterior - with the existing tree, with the urban steps and the area for relaxation or performances.
open competition: 2021, 2nd place
client: Vysoká škola múzických umení, Bratislava
architects: Andrej ALEXY, Mária BOGÁROVÁ, Michal BOGÁR
cooperation: Veronika SLANIČANOVÁ, Matúš KRÁLIK, Matúš BLAŽÍČEK, Erik JAKEŠ


