Detail
Stráže sú lokalita s VIP polohou. Tento svažitý a zväčša slnečný kúsok mesta má Bratislavu ako na dlani. Už niekoľko desaťročí ho postupne obsadzujú vily rôznych tvarov a veľkostí, každá s ambíciou pôsobiť honosne. Kvalita rôznorodá. Našou úlohou bolo navrhnúť rodinný dom pre dve nezávislé rodiny. Pozemok neveľký, sny a túžby budúcich obyvateľov domu značné.
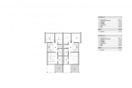
Návrh rodinného domu vychádzal zo zámeru optimalizovať zastavanosť pozemku v kontexte hľadania rovnováhy medzi prevádzkovými potrebami oboch rodín, kapacitnými možnosťami parcely pri maximálnom zachovaní súkromia a zhodnotení benefitov prostredia, ako sú pekné výhľady a pobytové plochy v exteriéri. Priestorová koncepcia je rozvrhnutá do dvoch symetrických častí so zrkadlovo obrátenou dispozíciou. Uličné priečelie s výraznou, no zároveň subtílnou predsadenou konštrukciou lodžií s tienením však zámerne pôsobí ucelene ako jeden objekt. Nech je tu poriadok, jasný systém, ktorý trochu stlmí trieštivú rôznorodosť okolia.
projekt: 2024
parcela: 572 m2
zastavaná plocha: 171 m2
úžitková plocha: 495,50 m2
klient: súkromná osoba
autori: Andrej ALEXY, Erik JAKEŠ
spolupráca: Ľubomíra PILIPOVÁ



