Detail
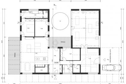
Nenápadný, lokálny, trocha tradičný a nenásilne súčasný. Dom, ako za starých čias, spája bývanie a remeselnú resp. umeleckú dielňu bez toho, aby sa obe stránky života rodiny akokoľvek rušili. Pointa je v dispozícií v tvare U so zeleným patiom uprostred. Vďaka tomu sú obe krídla domu vo vizuálnom kontakte, ale každé má svoj vlastný životný priestor. S ulicou susedí časť so sklárskym ateliérom, na opačnej strane, smerom do záhrady je obytné krídlo s dobre chráneným súkromím. Hoci patio vôbec nie je veľké, svetlo, ktoré vďaka nemu prúdi do všetkých priestorov je prekvapivo veľkorysé. Silueta a výraz domu vychádzajú z pôvodnej dedinskej zástavby, ktoré sú parafrázované v súčasnom materiálovom stvárnení – plech, Cetris a drevo.
projekt: 2012
realizácia: 2013-2016
parcela: 1 376 m2
zastavaná plocha:
úžitková plocha - obytná časť: 156,5 m2
úžitková plocha – ateliér: 102,0 m2
klient: súkromná osoba
autor: Andrej ALEXY
spolupráca: Štefan RAFANIDES, Tomáš Abramovič
foto: Tomáš MANINA



