Detail
Steep slope. Most of the builders in the neighborhood got scared of it and built houses in a pit after digging the slope. This lost the most valuable things - the view and privacy. The proposed house, on the other hand, is located higher to see the beauty of the Carpathian forests and to be as far away from the street traffic as possible.
project: 2017
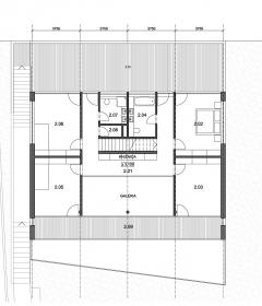
site: 839 m2
built-up area: 220,90 m2
useful area: 255,07 m2
volume: 765,21 m3
client: súkromná osoba
architect: Andrej ALEXY

