Detail
Nekomerčné zadanie v krásnom prostredí a s vysoko etickým obsahom. A aj s neodolateľnou výzvou premýšľať o budúcnosti areálu, ktorý bol vo svojich začiatkoch koncom 19. storočia zákutím typickej tatranskej architektúry s dobre fungujúcim urbanizmom a krajinným rámcom, no časom tieto kvality stratil. Je až neuveriteľné, ako dôkladne môžu zmiznúť stopy minulosti. Pôvabná hrázdená Vila Karatsonyi zhorela, rybník bol zasypaný a urbanistický poriadok sa postupne vytratil. Posledným preživším zostal Charitný dom z rokov 1935-1938, avšak s prístavbou, ktorá mu nesluší.
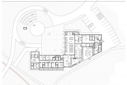
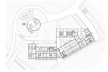
Rozsiahle súťažné zadanie zahŕňalo viacero objektov – rekonštrukciu Charitného domu, návrh novej prístavby s ubytovaním, reštauráciou a kongresovou sálou, kaplnku, Domov pokojnej staroby, ubytovanie pre rodiny s deťmi a ubytovanie pre pútnikov. A, samozrejme, krajinné riešenie. Rozhodli sme sa pre návrat do minulosti – vrátili sme sa k historickej kompozičnej schéme dvoch osí, na mieste pôvodných objektov sme vztýčili nové stavby, obnovili sme rybník aj ideu krytej kolonády. Pridali sme viaceré verejné či poloverejné priestory rôzneho charakteru. Na stretávanie sa, bohoslužby pod holým nebom, vnímanie pokoja a prírody či komunitné aktivity.
Krajinné riešenie je poňaté ako viacgeneračný priestorový program s bohatou škálou pobytových a prechádzkových možností. Areál je podľa prirodzenej topografie a charakteru vegetácie rozčlenený na tri zóny:
1. Zóna stretávania sa – v úvodnej časti areálu, rušnejšie prostredie napojené na parter, prepája Charitný dom s prístavbou s reštauráciou a kongresovou sálou, kaplnku, Dom pokojnej staroby a Ubytovanie pre rodiny s deťmi, kde je tematická Biblická záhrada (rastliny spomínané v Biblii)
2. Zóna stíšenia – zahŕňa obnovené jazierko a farskú lúku s pôvodnou kvetenou, sadom a včelími úľmi (analógia Rajskej záhrady)
3. Zóna duchovnej obnovy - v lesnej sekcii, ponúka prechádzky a pobytové miesta v rámci tzv. Cesty slova (chodník nad terénom a terasy na rozjímanie v sprievode biblických textov) a tiež Krížovú cestu.
Aj architektúra pracuje s témou návratu, hoci jej výraz je súčasný. Cieľom bolo vytvoriť atmosféru, ktorá bude jemne evokovať horské zotavovne z čias, keď sa ešte krajina natoľko neexploatovala hustotou a objemom výstavby. Leitmotívom je voľnosť, civilný charakter, primeraná mierka a nevtieravá obyčajnosť.
verejná dvojetapová urbanisticko-architektonická súťaž: 2022, 2. miesto
vypisovateľ: Spišská katolícka Charita
autori: Andrej ALEXY, Andrea PRIEVALSKÁ, Veronika SLANIČANOVÁ, Erik JAKEŠ, Laura ZÁHORANOVÁ, Matúš BLAŽÍČEK



